top of page


Rozdíl mezi bytovkou a viladomem? Styl.
Viladomy se poznají podle kvalitních společných prostor a kvalitních materiálů.
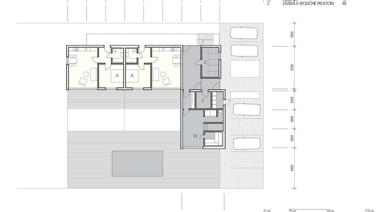
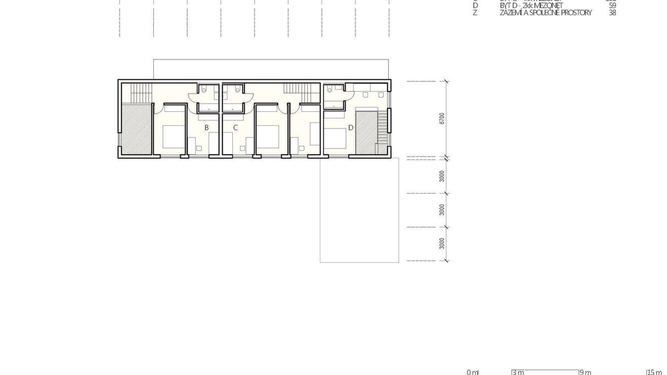
Bytový dům v této konfiguraci umožňuje spojit efektivní soukromé bydlení s komfortem společného vybavení - zahrada, bazén, dílna. Záleží jen na typu klientely.
Viladom? No a to je co?
Prototyp projektu menšího bytového domu. Mix různých bytových jednotek je doplněn soukromými zahrádkami, bazénem a společnou komunitní zahradou. Vše je obaleno ve dřevěném obkladu a oživeno barevnými okny.

BD Modern Life
místo: -
projekt: 2012
realizace: -
architektonické řešení: Ing. arch. Vlado Hrivňák
Připravujete viladům? Ozvěte se nám.
bottom of page












